Áreas
Terreno: 544 m²
Casa: 537 m²
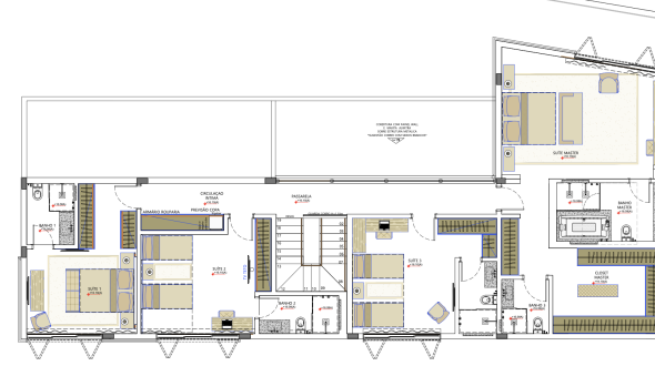
4 Suítes
Projeto
Arquitetura: Olegário de Sá
Estrutural: Planear
Elétrica e hidráulica: DLameza Engenharia
Localização
Alamedas das Cássias, 258
Condomínio Tamboré 10
Santana de Parnaíba, SP
Valores
Venda: R$ 11.700.000
Condomínio: R$ 3.366/mês
IPTU: R$ 8.621/ano
FORO: R$ 4.242/ano
Características do programa
4 suítes, localizadas no piso superior
Suíte máster com closet
Sala de estar e jantar com pé direito duplo
Área gourmet integrada ao lazer com terraço externo coberto
Piscina com prainha
Cozinha com despensa
Lavanderia e dependências de empregada
Lavabo e banheiro de piscina
Garagem coberta para 4 vagas
Memorial de Acabamentos
Fachada em brise de alumínio na cor madeira
Piso da área social com porcelanato de grande formato
Piso superior revestido em madeira cumaru
Forro em madeira ripada cumaru na área social
Janelas piso-teto em alumínio na cor grafite
Portas de madeira piso-teto em laca branca
Guarda-corpo em vidro embutido no piso
Banho máster com banheira de hidromassagem
Banhos com bancada em cuba esculpida em mármore
Área gourmet com bancada em quartzo branco
Louças e metais Deca
Piscina revestida em porcelanato tipo “pedra palimanan”
Cozinha e lavanderia com bancada em granito Preto São Gabriel
Paisagismo completo
Itens inclusos
Living, jantar e gourmet 100% mobiliados e decorados
Eletrodomésticos instalados na cozinha e na lavanderia
Ar condicionado instalado no living e nas suítes
Aquecimento solar para água de consumo
Filtro e bomba da piscina instalado
Automação da iluminação com sistema Scenario
Internet com equipamentos Ubiquiti
Previsto aquecimento na piscina (elétrico ou gás)
Previsto para energia fotovoltáica (infra seca)
Previsão para som ambiente (infra seca)
